ABITAZIONE con SPAZIO COMMERCIALE / Pesariis di Prato Carnico

In primo piano
  • €135.000,00
126, Frazione Pesariis, Prato Carnico / Prât di Cjargne, Udine, Friuli-Venezia Giulia, 33020, Italia
In primo piano

ABITAZIONE con SPAZIO COMMERCIALE / Pesariis di Prato Carnico

126, Frazione Pesariis, Prato Carnico / Prât di Cjargne, Udine, Friuli-Venezia Giulia, 33020, Italia
  • €135.000,00

Dettagli

Aggiornato su Agosto 5, 2025 a 1:57 pm
  • Rif.: PR-299
  • Prezzo: €135.000,00
  • Superficie immobile: 283 m²
  • Camere da letto: 5
  • Bagni: 2
  • Garage: 1
  • Superficie Garage: 25
  • Tipo di immobile: Casa, COMMERCIALI, RESIDENZIALI
  • Stato dell'immobile: Vendita

Descrizione

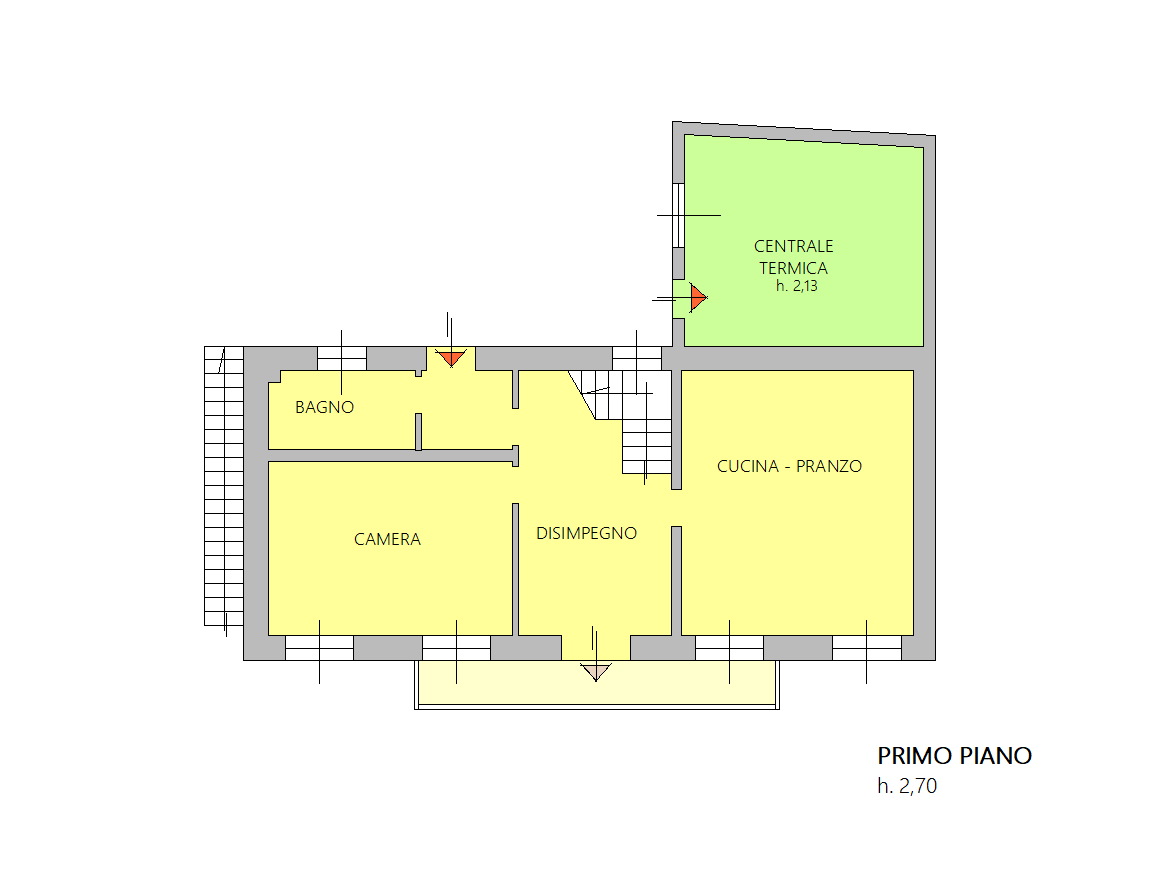
Interessante soluzione abitativa con spazio commerciale posta nel suggestivo storico borgo di Pesariis, pratico e funzionale immobile affacciato sulla via principale completamente restaurato. Il fabbricato dispone di spazio indipendente al piano terra con vano ad uso commerciale ed annesso deposito.  I locali residenziali al piano rialzato sono accessibili attraverso corte esterna collegata al livello stradale posto sul retro, comprendono un ingresso/vano scale disimpegnato con terrazzo, una cucina/pranzo, camera e bagno, ampia centrale termica. Al piano superiore ulteriori quattro vani letto ed un servizio igienico, oltre ad un un locale multiuso.

L’impianto termosanitario è alimentato da caldaia a gasolio, stufa a pellet canalizzata posta nel vano giorno, dal 2023 l’immobile dispone inoltre di impianto fotovoltaico 6kw con accumulo di 10 kw.

I vani sono completamente arredati con elementi cucina di recentissimo realizzo.

Disponibile piccolo orto nelle vicinanze.

Ottima opportunità d’investimento per chi cerca una spaziosa abitazione con unità commerciale a reddito: il piano terra è attualmente locato ad uso negozio alimentari.

Planimetrie

image

Descrizione:

image

Descrizione:

image

Descrizione:

  • Comune Prato Carnico

Classe Energetica

  • Classe Energetica: F
  • Indice di prestazione energetica globale: 178.63
  • Indice di prestazione energetica rinnovabile: 88.75
  • A+
  • A
  • B
  • C
  • D
  • E
  • 178.63 | Classe Energetica F
    F
  • G
  • H

Confronta gli annunci

Confrontare
Domini Candida
  • Domini Candida